185 0165 5117
欢迎光临上海柏甲流体控制设备有限公司官网!

精益求精 / 精诚合作 / 用心服务

产品导航

产品展示

Product display

挡板式水流开关
    发布时间: 2012-08-07 14:41    
挡板式水流开关

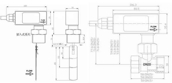
WFS系列挡板式水流开关,流量开关:
  挡板水流开关是上海柏甲流体控制设备有限公司开发的一种全新结构的流量开关,采用低压降、高精度设计,具有可靠性高、使用寿命长、使用温度范围宽、承压高等特点从结构上大大提高了流量开关的可靠性,可根据客户要求精确设定保护流量值,机械部分与电子部分安全隔离。产品不含容易导致故障发生的波纹管,电器部件不直接与温差大的金属部件接触,不存在电器部件产生冷凝水导致锈蚀的问题,它具有多种类型可供客户选择以适应不同的应用场合。使用进口磁敏开关作为电气动作部件,它具有较小的断开和复位流量,主要应用在制冷及空调领域工业流体控制工业自动化,润滑系统,液压系统过程生产线、净水污水处理系统、造纸、药业等一切需要检测液体流量的领域。

产品特性:

  • 外壳防护等级:IP65
  • 输出形式:微动开关SPDT输出或Din插头输出
  • 触点寿命:10万次
  • 使用介质温度范围:-30~110℃
  • 工作介质:空气、水和油
  • 微动开关参数:5A(max.)、250VAC/DC)
  • 最大承压:25bar,
  • 材质:壳体为黄铜镀镍,挡板为不锈钢材质

选型示例:
选型参考:

型号 接口尺寸 安装管径 最大允许流量值(L/min) 流量保护值设定范围 (L/min)
WFSN15 G1/2"内丝 15(G1/2〞)  30 1.5-15
WFSN20 G3/4"内丝 20(G 3/4〞) 100 5-35
WFSN25 G1" 内丝 25(G 1〞) 180 0.4-3
WFSN32 (G1 1/4〞) 3232(G1 1/4〞) 250 6.5-65
WFSW20(插入式) G3/4"外丝 32(G1 1/4〞) 250 6.5-65
40(G1 1/2’’) 350 15-100
WFSW25(插入式) G1" 外丝 50 (G 2) 500 20-135
. . . . . . . . . . . . . . . . . .
200 (G12’’) 2000 50-200

咨询热线(微信同号
185 0165 5117